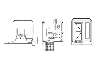
215 x 215 - Kerekesszékes hordozható WC

  • Magasság 245 cm
  • Szélesség 215 cm
  • Hosszúság 215 cm
  • Súly 540 kg
Jelenleg [VENDÉG] vendég nézi ezt a terméket
Hívjon minket